Vändkrans Dubbel borrad Går att få i fler storlekar
| Artikelnummer: | 31011 |
|---|
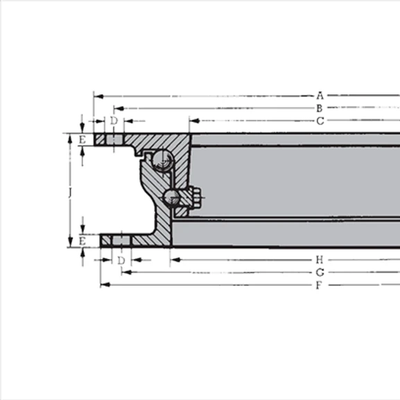
Vändkrans
Övre ring
Mått
A: Övre yttre ring Ø 894mm
B: Bult cirlek Ø 866mm
C: Inner Ø 749.5220mm
D: Borr Ø 16mm
E: Flänstjocklek 9mm
Undre ring
F: Undre ring yttre Ø 880mm
G: Bult cirkel Ø 852mm
H: Inner Ø 554mm
Total bygghöjd
J: 80mm
Belastning
Tillåten axellast: 8.000Kg
Tillåten släpvagnsvikt 40.000Kg
Vändkrans
Övre ring
Mått
A: Övre yttre ring Ø 894mm
B: Bult cirlek Ø 866mm
C: Inner Ø 749.5220mm
D: Borr Ø 16mm
E: Flänstjocklek 9mm
Undre ring
F: Undre ring yttre Ø 880mm
G: Bult cirkel Ø 852mm
H: Inner Ø 554mm
Total bygghöjd
J: 80mm
Belastning
Tillåten axellast: 8.000Kg
Tillåten släpvagnsvikt 40.000Kg